Описание квартиры в "Сокол"
Доступна к покупке 2-комнатная квартира в современном жилом комплексе "Сокол" 🏢.
Квартира расположена на 1-м этаже 10-этажного дома.
Прекрасный выбор для семьи.
Функциональная планировка
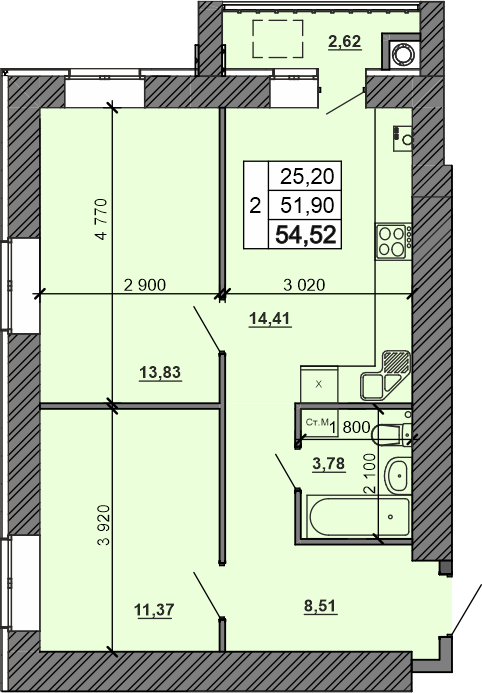
- ✅ Общая площадь: 54.52 м².
- ✅ Просторная жилая площадь: 25.2 м².
- ✅ Кухня: 14.41 м² — эргономичное пространство.
Преимущества квартиры
- 🔧 Вариант отделки: предварительная отделка. Минимум грязных работ.
- 🌞 Увеличенные оконные проемы наполняют помещения естественным светом.
- 🌿 Класс жилья: Комфорт — высокое качество строительства.
Финансы и ипотека
- 💳 Ипотека от 24 320 руб/мес.
- 🏦 Доступны льготные программы господдержки.
- 🤝 Эскроу-счета гарантирует спокойствие.
Чтобы забронировать эту квартиру бесплатно и зафиксировать цену — свяжитесь с нами прямо сейчас! 📞
Характеристики новостройки в Сокол
- Номер квартиры: 2
- Вариант отделки: предварительная отделка
- Общая площадь: 54.52 м²
- Жилая площадь: 25.2 м²
- Площадь кухни: 14.41 м²
- Класс жилья: Комфорт
- Количество комнат: 2-комнатная квартира
- Этаж: 1
- Этажность дома: 10
Полезная информация о Сокол