Россия, Рязань, Кальное м-н, Кипарис, строящийся жилой комплекс
Площадь
Жилая
Кухня
Отделка
Класс жилья
Номер кв.
Этаж
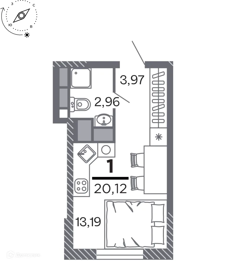
Предлагается Студия в новом жилом комплексе "Кипарис (Дом на Быстрецкой)" 🏢. Квартира расположена на 20-м этаже 25-этажного дома. Отличный вариант для семьи.
Для бесплатного бронирования и зафиксировать цену — позвоните нам прямо сейчас! 📞
Инвестируйте в квартиры в новостройках Рязани! Это надёжный актив: низкий порог входа, высокий спрос на аренду и перепродажу, выгодное расположение рядом с Москвой. ЖИЛОЙ ДОМ «КИПАРИС» ------------------- «Кипарис» — дом про умный комфорт. Здесь всё продумано, чтобы жизнь была удобной, безопасной и без лишней суеты. Дом расположен на улице Быстрецкая. До гипермаркета «Глобус» — семь минут на машине, до Театральной площади — десять. Стилобат создает двор, как самостоятельный мир, где ничто не отвлекает. Всё устроено с умом — чтобы жить легко и спокойно. Машин во дворе нет: весь транспорт размещён под стилобатом, в паркинге на 168 мест. Домой можно подняться на лифте прямо с подземного уровня – сухо, чисто и без лишних движений. Над паркингом расположен стилобат с двором площадью около 3500 м². Здесь порядок и покой. Пространство спроектировано так, чтобы каждый уголок был удобным. У «Кипариса» свой авторский ландшафтный дизайн. Всё подчинено идее равновесия и порядка. Растут ивы, спирея, можжевельник. В геокуполе — песок с Мальдив: чистый, безопасный, приятный на ощупь. Это и есть умный комфорт — когда о мелочах подумали заранее. В доме 25 этажей, один подъезд. Дом кажется спокойным и собранным, как место, где все друг друга знают и здороваются по утрам. Из окон верхних этажей видно и город, и зелёные зоны. Квартиры — от студий 19–25 м² до двухкомнатных 58 м². Высота потолков — 2,7 метра. Каждая квартира спроектирована так, чтобы пространство внутри было светлым и удобным. Первый этаж комплекса объединяет жилые квартиры с удобными сервисами: здесь есть колясочная, офисы и магазины. Всё, что нужно в повседневной жизни, можно решить буквально по пути домой — купить продукты, выполнить бытовые дела или выпить кофе. В квартирах уже есть всё нужное: оштукатуренные стены, стяжка с фиброволокном, коллекторное отопление. Тепло поступает от собственной крышной котельной, трубы скрыты в полу. Есть мастер-выключатель — одним нажатием можно отключить свет перед выходом. Мелочь, но удобная. Окна — двухкамерные, с надёжной фурнитурой «Roto». Входные двери металлические, с шумоизоляцией. Каждая деталь продумана, чтобы дом был комфортным не на словах, а на деле. «Кипарис» — про спокойствие, порядок и умный комфорт. Дом, где всё работает так, как нужно. Дом, где не просто живешь, а наслаждаешься жизнью.
Срок сдачи: 4 кв. 2028 г.
Срок сдачи: 4 кв. 2028 г.
Площади квартир
Тип жилья
Этажность
Класс жилья
Корпусов
Стены