Рязанская область, Рязанский район, с. Дядьково
Площадь
Жилая
Кухня
Отделка
Класс жилья
Комнат
Номер кв.
Этаж
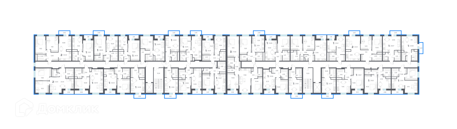
Продается 1-комнатная квартира в востребованном жилом комплексе "ЖК Окские просторы" 🏢. Квартира расположена на 7-м этаже 8-этажного дома. Отличный вариант для семьи.
Чтобы узнать подробности и проверить актуальную стоимость — позвоните нам прямо сейчас! 📞
ЖK «Окские просторы» - малоэтажный жилой комплекс в зеленом районе Дашково- Песочни. По проекту здесь будут построены 11 жилых домов, которые образуют приватное пространство с закрытой территорией. Здесь в каждом доме: • Классические и смарт планировки. • Автономное отопление. • Система «умный домофон», быстрые и бесшумные лифты с удобной навигацией, видеонаблюдение во дворах и подъездах. • Обновленные инженерные решения. По проекту на территории предусмотрена школа, детский сад и ясли, торговый центр и благоустроенная набережная. При сдаче в квартире выполнена предчистовая отделка: установлена металлическая дверь, не требующая замены, пластиковые окна, приборы учёта, радиаторы, розетки и выключатели, выполнена разводка электрики. Стены оштукатурены и выровнены. Выполнена стяжка пола. Дополнительно от застройщика можно заказать отделку под ключ (с возможным включением в ипотеку). Выгода до 30%. Действуют особые условия на ипотечные программы: • без первого взноса; • семейная ипотека; • для работников бюджета -2% от базовой ставки; • ипотека для многодетных; • военная ипотека; • для ИП; • по двум документам без подтверждения дохода.
Срок сдачи: 4 кв. 2020 г.
Срок сдачи: 4 кв. 2020 г.
Площади квартир
Тип жилья
Этажность
Класс жилья
Корпусов
Стены
69%
83%
100%
55%