Обзор квартиры в "ЖК город Рязань, Улица Зубковой"
Предлагается 1-комнатная квартира в востребованном жилом комплексе "ЖК город Рязань, Улица Зубковой" 🏢.
Квартира расположена на 15-м этаже 26-этажного дома.
Отличный вариант для комфортной жизни.
Функциональная планировка
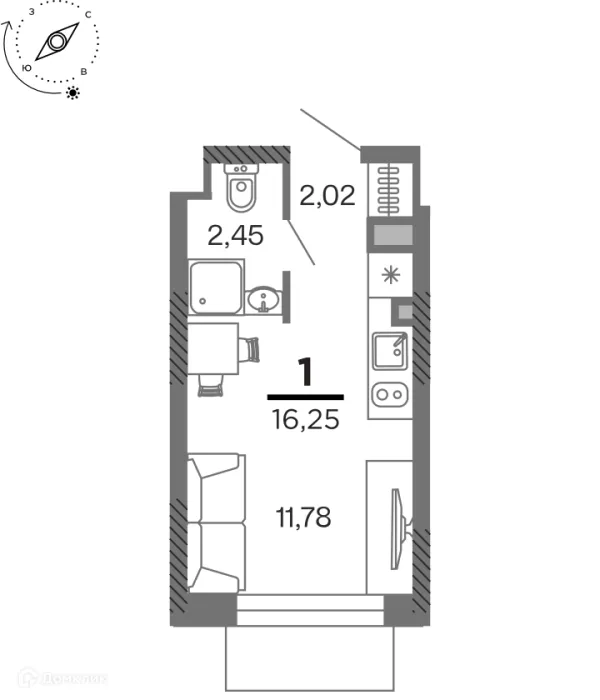
- ✅ Общая площадь: 23.19 м².
- ✅ Просторная жилая площадь: 13.72 м².
- ✅ Кухня: 3.74 м² — идеальна для семейных ужинов.
Особенности квартиры
- 🔧 Вариант отделки: без ремонта. Минимум грязных работ.
- 🌞 Большие окна наполняют помещения естественным светом.
- 🌿 Класс жилья: Комфорт — высокое качество строительства.
Выгодные условия покупки
- 💳 Ипотека от 26 838 руб/мес.
- 🏦 Доступны льготные программы господдержки.
- 🤝 Покупка напрямую от застройщика гарантирует спокойствие.
Чтобы узнать подробности и зафиксировать цену — позвоните нам прямо сейчас! 📞
Характеристики новостройки в ЖК город Рязань, Улица Зубковой
- Номер квартиры: 273
- Вариант отделки: без ремонта
- Общая площадь: 23.19 м²
- Жилая площадь: 13.72 м²
- Площадь кухни: 3.74 м²
- Класс жилья: Комфорт
- Количество комнат: 1-комнатная квартира
- Этаж: 15
- Этажность дома: 26
Полезная информация о ЖК город Рязань, Улица Зубковой