Обзор квартиры в "ЖК город Рязань, Улица Зубковой"
Предлагается 1-комнатная квартира в современном жилом комплексе "ЖК город Рязань, Улица Зубковой" 🏢.
Квартира расположена на 25-м этаже 26-этажного дома.
Отличный вариант для комфортной жизни.
Продуманная планировка
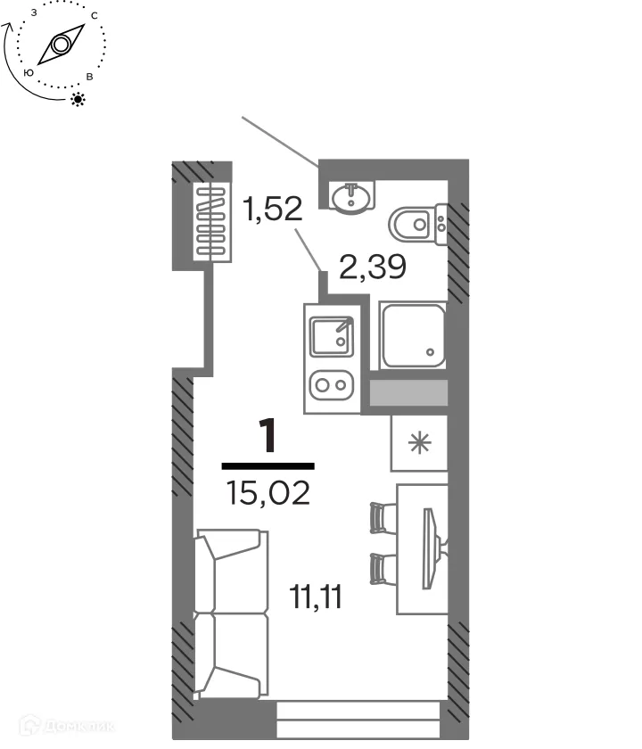
- ✅ Общая площадь: 15.02 м².
- ✅ Светлая жилая площадь: 8.82 м².
- ✅ Кухня: 2.29 м² — эргономичное пространство.
Преимущества квартиры
- 🔧 Вариант отделки: без ремонта. Это позволит вам сразу приступить к ремонту.
- 🌞 Панорамное остекление наполняют помещения природным светом.
- 🌿 Класс жилья: Комфорт — современные технологии.
Выгодные условия покупки
- 💳 Ипотека от 11 893 руб/мес.
- 🏦 Подходит под семейную и IT ипотеку.
- 🤝 Эскроу-счета гарантирует надежность.
Чтобы забронировать эту квартиру бесплатно и зафиксировать цену — свяжитесь с нами прямо сейчас! 📞
Характеристики новостройки в ЖК город Рязань, Улица Зубковой
- Номер квартиры: 471
- Вариант отделки: без ремонта
- Общая площадь: 15.02 м²
- Жилая площадь: 8.82 м²
- Площадь кухни: 2.29 м²
- Класс жилья: Комфорт
- Количество комнат: 1-комнатная квартира
- Этаж: 25
- Этажность дома: 26
Полезная информация о ЖК город Рязань, Улица Зубковой