Обзор квартиры в "ЖК город Рязань, Улица Зубковой"
В продаже 1-комнатная квартира в современном жилом комплексе "ЖК город Рязань, Улица Зубковой" 🏢.
Квартира расположена на 17-м этаже 26-этажного дома.
Отличный вариант для семьи.
Продуманная планировка
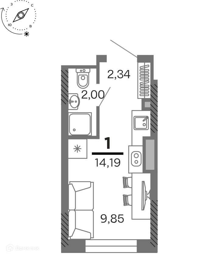
- ✅ Общая площадь: 14.19 м².
- ✅ Просторная жилая площадь: 6.92 м².
- ✅ Кухня: 2.93 м² — место для кулинарных шедевров.
Особенности квартиры
- 🔧 Вариант отделки: без ремонта. Это позволит вам сразу приступить к ремонту.
- 🌞 Увеличенные оконные проемы наполняют помещения природным светом.
- 🌿 Класс жилья: Комфорт — высокое качество строительства.
Финансы и ипотека
- 💳 Ипотека от 17 239 руб/мес.
- 🏦 Доступны льготные программы господдержки.
- 🤝 Покупка напрямую от застройщика гарантирует надежность.
Для бесплатного бронирования и зафиксировать цену — свяжитесь с нами прямо сейчас! 📞
Характеристики новостройки в ЖК город Рязань, Улица Зубковой
- Номер квартиры: 310
- Вариант отделки: без ремонта
- Общая площадь: 14.19 м²
- Жилая площадь: 6.92 м²
- Площадь кухни: 2.93 м²
- Класс жилья: Комфорт
- Количество комнат: 1-комнатная квартира
- Этаж: 17
- Этажность дома: 26
Полезная информация о ЖК город Рязань, Улица Зубковой