Обзор квартиры в "ЖК город Рязань, Улица Зубковой"
В продаже 1-комнатная квартира в новом жилом комплексе "ЖК город Рязань, Улица Зубковой" 🏢.
Квартира расположена на 22-м этаже 26-этажного дома.
Прекрасный выбор для семьи.
Продуманная планировка
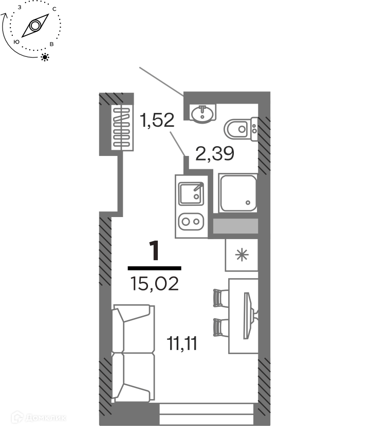
- ✅ Общая площадь: 15.02 м².
- ✅ Светлая жилая площадь: 8.82 м².
- ✅ Кухня: 2.29 м² — место для кулинарных шедевров.
Преимущества квартиры
- 🔧 Вариант отделки: без ремонта. Минимум грязных работ.
- 🌞 Увеличенные оконные проемы наполняют помещения естественным светом.
- 🌿 Класс жилья: Комфорт — высокое качество строительства.
Выгодные условия покупки
- 💳 Ипотека от 18 026 руб/мес.
- 🏦 Подходит под семейную и IT ипотеку.
- 🤝 Безопасная сделка гарантирует спокойствие.
Чтобы забронировать эту квартиру бесплатно и проверить актуальную стоимость — позвоните нам прямо сейчас! 📞
Характеристики новостройки в ЖК город Рязань, Улица Зубковой
- Номер квартиры: 411
- Вариант отделки: без ремонта
- Общая площадь: 15.02 м²
- Жилая площадь: 8.82 м²
- Площадь кухни: 2.29 м²
- Класс жилья: Комфорт
- Количество комнат: 1-комнатная квартира
- Этаж: 22
- Этажность дома: 26
Полезная информация о ЖК город Рязань, Улица Зубковой