Рязань, Московский м-н, Строящийся жилой комплекс Тринити
Площадь
Жилая
Кухня
Отделка
Класс жилья
Комнат
Номер кв.
Этаж
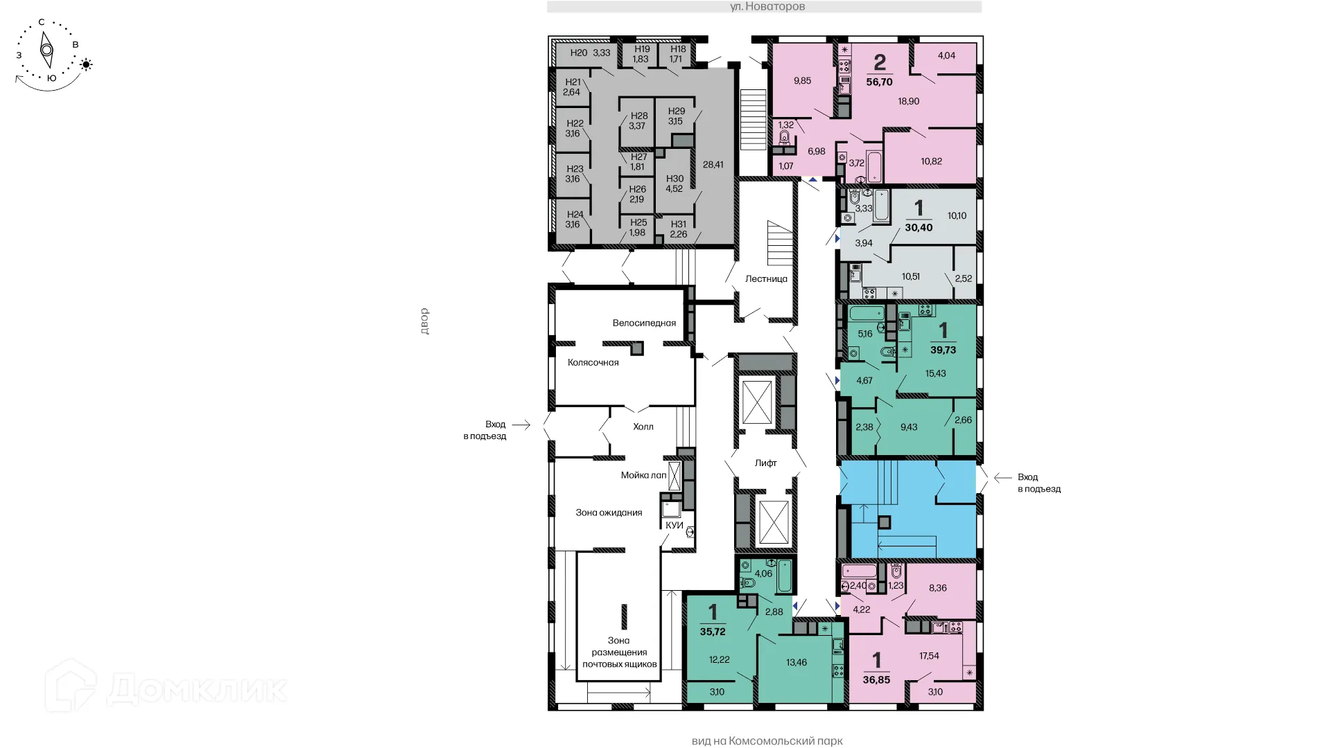
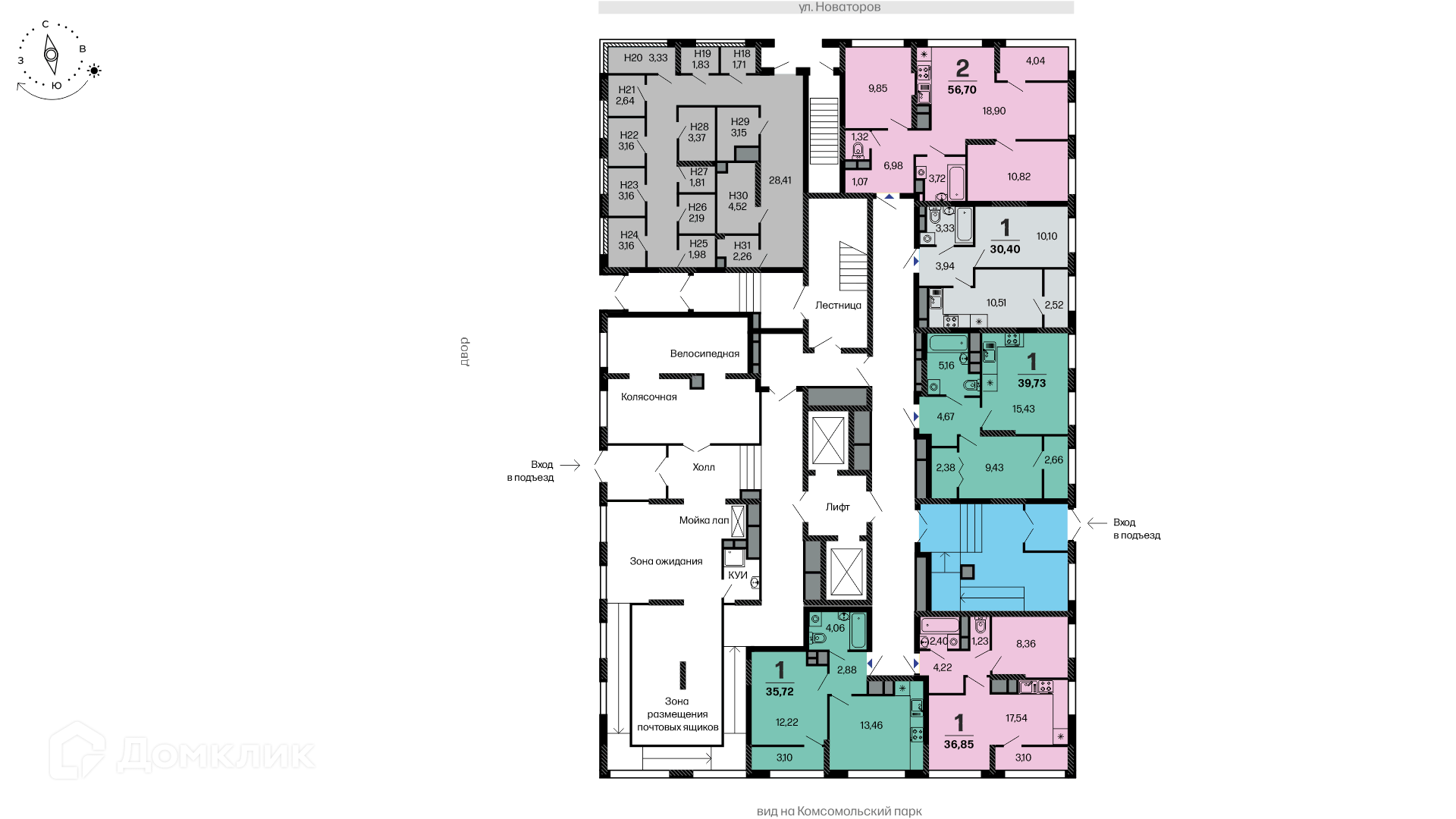
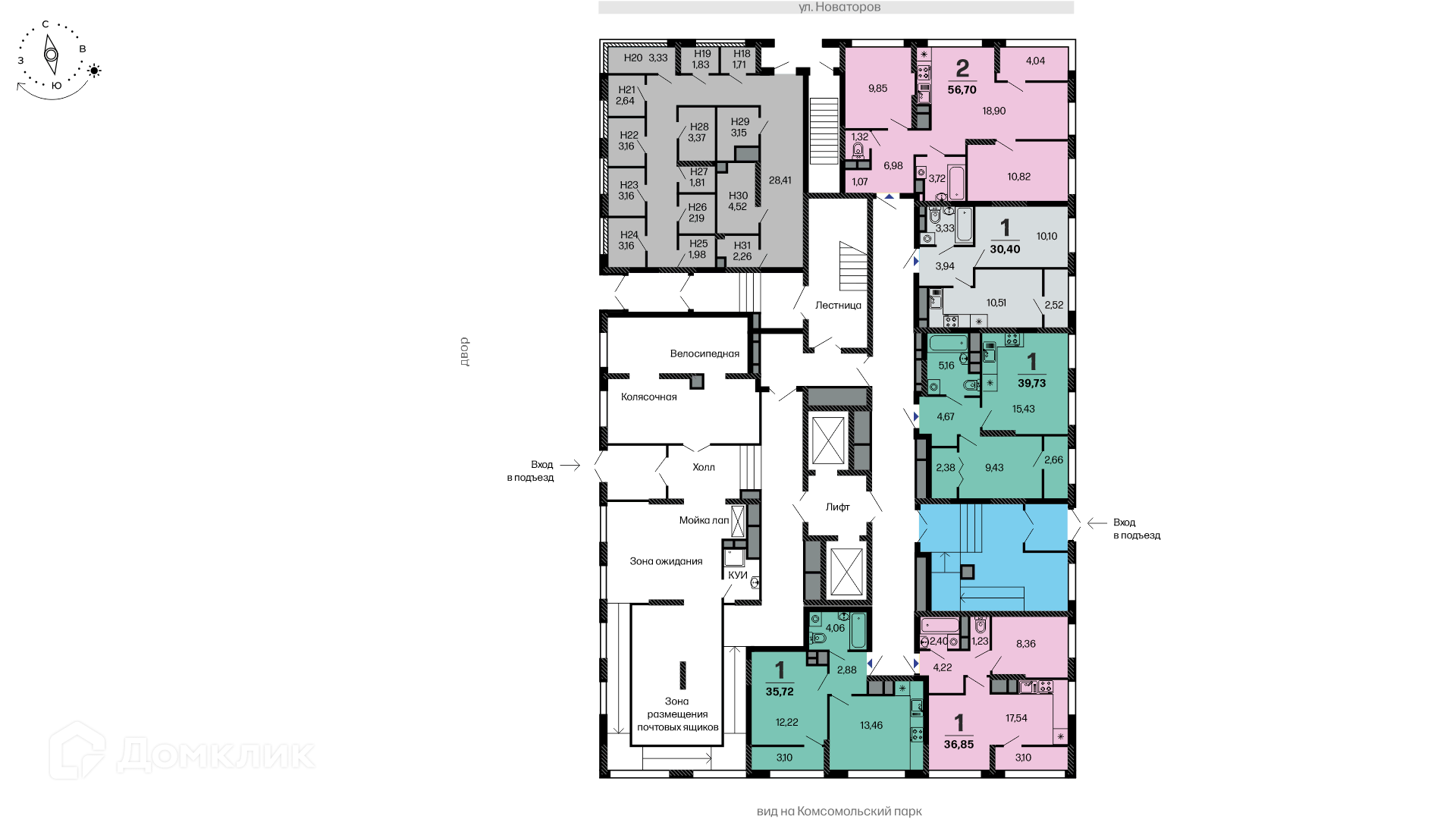
В продаже 2-комнатная квартира в востребованном жилом комплексе "ЖК Тринити" 🏢. Квартира расположена на 1-м этаже 22-этажного дома. Отличный вариант для инвестиций.
Чтобы забронировать эту квартиру бесплатно и проверить актуальную стоимость — свяжитесь с нами прямо сейчас! 📞
ПРОДУМАННАЯ ИНФРАСТРУКТУРА «Тринити» расположен в тихом спальном районе с богатой и удобной инфраструктурой рядом с Комсомольским парком. В шаговой доступности – автобусные остановки, детские сады и школы. В пределах 10-минутной поездки располагаются поликлиники, ТРЦ «М5 Молл» и «Премьер», а также студенческий дворец культуры агротехнологического университета. БЕЗОПАСНЫЙ ДВОР Продуманный и благоустроенный двор закрыт от машин и от посторонних – вам не придётся переживать о безопасности детей и своём комфорте. С собственным парком во дворе площадью 4500 м2 вы сможете больше времени проводить на свежем воздухе: для детей предусмотрены разноплановые игровые комплексы, а для взрослых – спортивные тренажеры. Архитектурная подсветка фасадов и двора расставляет акценты и подчеркивает эргономичность. ВХОДНЫЕ ГРУППЫ В «Тринити» спроектированы многофункциональные входные группы с отделкой по индивидуальному дизайн-проекту. Мы предусмотрели: прозрачные входные группы без ступеней – удобные для всех категорий граждан; сквозной проход, чтобы вы видели всё, что происходит внутри и снаружи; велосипедные и колясочные, места для ожидания курьера, такси или гостей; керамогранитный пол и декоративная отделка. ПРЕДЧИСТОВАЯ ОТДЕЛКА КВАРТИР Мы создаём для вас максимум комфорта и удобства, поэтому квартиры в «Тринити» будут сданы с базовой отделкой: современная шумоизоляция; отсутствие газового оборудования – удобно, современно и экономично, тариф для таких квартир ниже; автономная система отопления от собственной котельной; улучшенная звукоизоляция; остекление с применением энергосберегающих технологий.
Срок сдачи: 4 кв. 2026 г.
Срок сдачи: 4 кв. 2026 г.
Площади квартир
Тип жилья
Этажность
Класс жилья
Корпусов
Стены
38%
6%
15%