Россия, Рязань, Михайловский м-н, улица Земнухова, 3
Площадь
Жилая
Кухня
Отделка
Класс жилья
Комнат
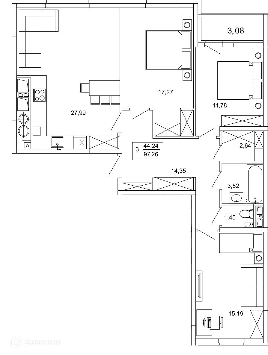
Номер кв.
Этаж
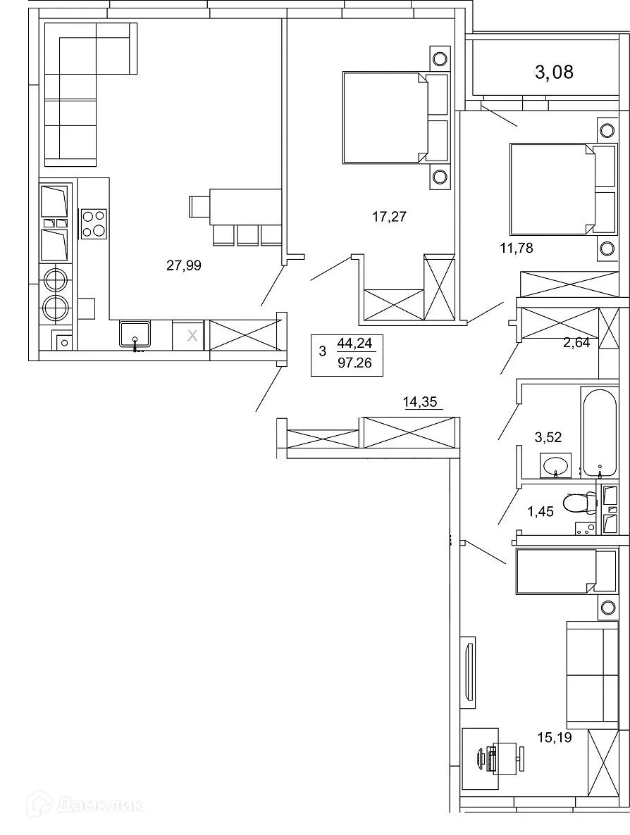
Продается 3-комнатная квартира в современном жилом комплексе "ЖК Смарт Квартал ЦЕНТРАЛЬНЫЙ" 🏢. Квартира расположена на 6-м этаже 26-этажного дома. Прекрасный выбор для комфортной жизни.
Для бесплатного бронирования и зафиксировать цену — свяжитесь с нами прямо сейчас! 📞
Центральный – комфортная жизнь в центре города! Респектабельный район «Центральный» объединил в себе все необходимое для комфортной жизни: шикарную транспортную доступность, близость к центру города и остановкам общественного транспорта, развитую инфраструктуру и собственную набережную. Всего в нескольких минутах пешей прогулки расположилися крупнейшие в городе ТРЦ «Премьер», ТЦ Барс, Барс Премиум и Метро, множество образовательных, спортивных и медицинский учреждений. Свой автомобиль вы сможете оставить на просторной парковке во дворе или приобрести индивидуальное парковочное место в многоуровневом паркинге. При этом в непосредственной близости есть живописные поля и набережная, которые идеально подходят для вечерних прогулок, семейных пикников и спокойного отдыха. Мы позаботились о том, чтобы двор вашего дома был безопасным и комфортным для всех: спорт, игры, общение, релакс – здесь найдется место для любой вашей идеи. Все квартиры нашего комплекса созданы с максимальным вниманием к деталям. Мы прорабатываем каждый сантиметр, чтобы ваш дом стал идеальным местом для отдыха и развития.
Срок сдачи: 2 кв. 2023 г.
Срок сдачи: 2 кв. 2023 г.
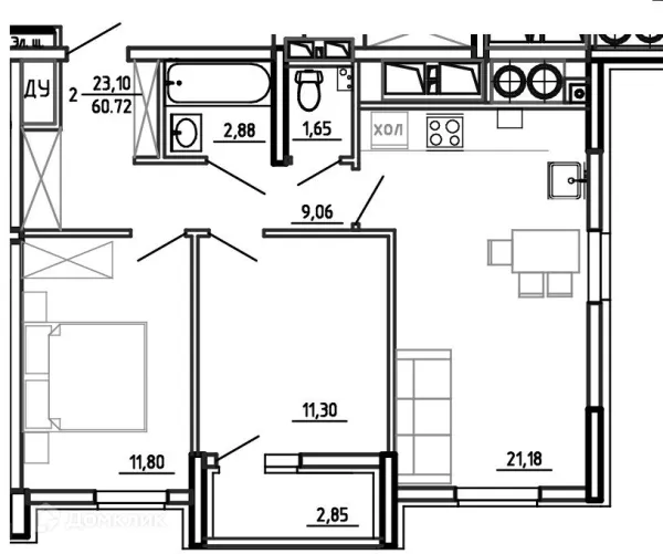
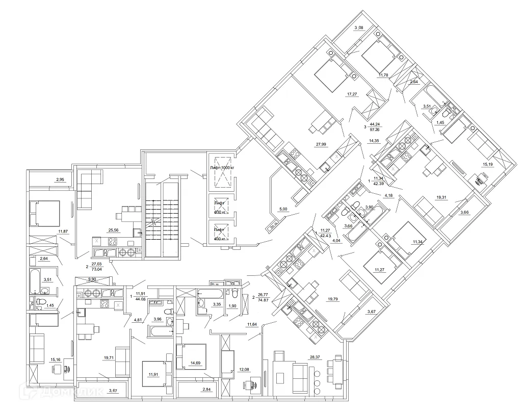
Площади квартир
Тип жилья
Этажность
Класс жилья
Корпусов
Стены
92%
83%
97%
56%
88%