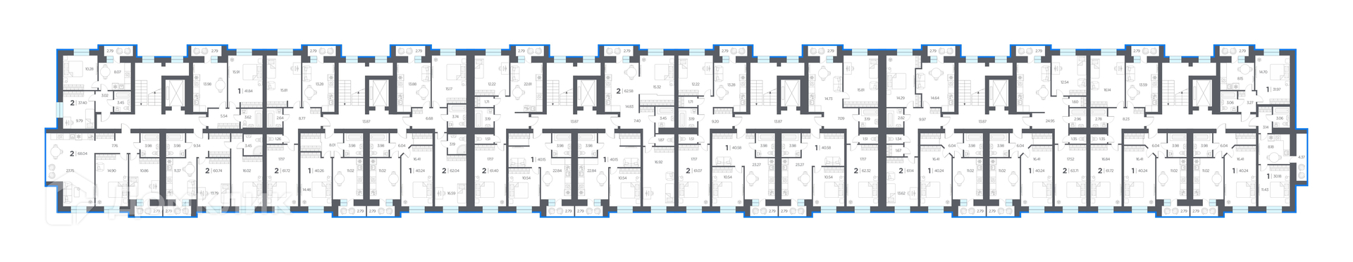
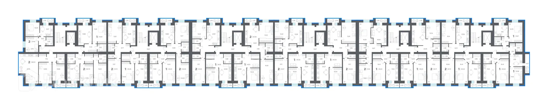
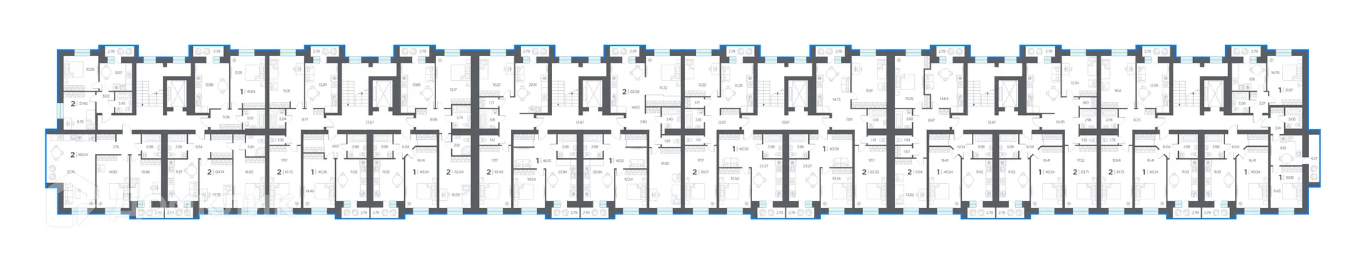
Рязанская область, Рязанский район, с. Дядьково, 2-й Бульварный проезд, 5 стр
Площадь
Жилая
Кухня
Отделка
Класс жилья
Комнат
Номер кв.
Этаж
Продается 2-комнатная квартира в современном жилом комплексе "ЖК ОГНИ" 🏢. Квартира расположена на 10-м этаже 11-этажного дома. Отличный вариант для комфортной жизни.
Чтобы узнать подробности и проверить актуальную стоимость — позвоните нам прямо сейчас! 📞
Новый квартал «Огни» — идеальный вариант для тех, кто ценит приватность и комфорт. Первая очередь квартала из 3 кирпичных домов создаст уединенный тихий район с большой дворовой территорией, детской и спортивной площадками и собственным детским садом. Внутренняя территория выполнена в концепции двор-парк, где более 50% пространства занимают зоны отдыха и озеленения. Особенно уютным район становится в вечернее время — многоуровневое освещение квартала создает безопасную атмосферу, приятную для отдыха и прогулок. Во дворе появятся детские площадки для разных возрастов. Все элементы выполнены из натуральных и безопасных материалов. Зимой они не промерзают, а летом не нагреваются. Антиударное покрытие обеспечивает безопасную среду для игр. Мы не забыли и о взрослых, которые хотят просто отдохнуть. Поэтому вместе с детскими площадками появятся лавочки, лежаки и беседки, где можно читать книгу, пить кофе и общаться с соседями. Особенности ЖК «Огни»: • 3 кирпичных 10-ти этажных дома комфорт-класса. • 4 квартиры на этаже. • Видовые квартиры с панорамным остеклением. • Просторные колясочные в холлах и на этажах. • Обновленные инженерные решения. При сдаче в квартире выполнена предчистовая отделка: установлена качественная металлическая дверь, не требующая замены, пластиковые окна, приборы учёта, стальные радиаторы, розетки и выключатели, выполнена разводка электрики. Стены оштукатурены и выровнены. Выполнена стяжка пола.
Срок сдачи: 1 кв. 2027 г.
Срок сдачи: 1 кв. 2027 г.
Площади квартир
Этажность
Класс жилья
Корпусов
Стены